密封应力来源
法兰与垫片
密封应力的来源,除了我们已经讲完的强制式密封与自紧式密封,还有半自紧式密封,它结合了强制式密封和自紧式密封的优点,能够在不同程度上适应螺栓载荷和介质压力的变化。
半自紧式密封✦
特殊的密封应力,部分源自螺栓载荷,部分源自介质压力。在这种情况下,密封应力被称为半自紧式密封。
半自紧式密封是一种在工业领域中广泛应用的密封方式。其工作原理主要是依靠螺栓载荷提供初始的密封应力。然而,这种密封方式并非一成不变,它能够随着介质压力的变化进行自我调整,从而达到更好的密封效果。

首先,让我们详细了解半自紧式密封的工作机制。在强制式密封的基础上,通过增加螺栓载荷,我们可以为半自紧式密封提供必要的密封应力。然而,随着介质压力的提高,半自紧式密封表现出更为优越的性能。它能够在原有密封应力的基础上,根据压力变化进行自动调整,从而实现更高的密封效果。

BMCORIN:适用于阀门与核电的O型密封环
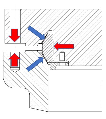
半自紧式密封特别适用于高中压以及压力波动的场合。例如,内开口c环密封结构,它能够在高压环境下保持稳定的密封性能。此外,双锥环垫也是一种半自紧式密封,其主要依靠主螺栓施加合理的密封应力。当压力升高时,压力会对环垫内侧产生径向推力,进一步适当提高密封应力。

双锥环密封连接结构
以及这种双锥环垫,其首先由主螺栓施加合理的密封应力,当压力升高的时候,压力会对环垫内侧产生径向推力,可以适当提高密封应力,但这种结构对高低温交变比较敏感。
BMCSE:具有在介质压力推动下的自紧功能
总之,半自紧式密封凭借其独特的优点和良好的适应性,在工业领域得到了广泛应用。然而,我们也要认识到它的局限性,特别是在高低温环境下的性能表现。因此,合理选用强制式、自紧式或半自紧式密封,可以实现更好的密封效果。
妙 懂 密 封
密封泄漏 宝骅解决,如有对密封领域技术方面存在疑惑,敬请关注我们苏州宝骅,欢迎咨询及评论留言!谢谢大家!下一期我们再见啦!
关注公众号 了解更多资讯